Company
GROUTING
VERTICAL VIBRATING JET
GALLERY
CUSTOMER
°¡½Ã¼³ ¹è¸éÂ÷¼ö ¹× Áö¹Ýº¸°
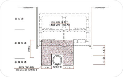
±¼Âø¸é ÇϺκ¸° ±×¶ó¿ìÆÃ
´ï ¡¤ Àú¼öÁö ±âÃÊ󸮰ø
¸Å¸³Áö ¿¬Á÷Â÷¼ö
ÁöÇÏÂ÷µµ ÇϺκ¸°
°üÃßÁø »óºÎº¸° ±×¶ó¿ìÆÃ
±³·®±âÃÊ ÇϺΠ°øµ¿ ÃæÁø
ÅͳΠ°°ü º¸° ±×¶ó¿ìÆÃ